このサイトではJavaScriptを使用したコンテンツ・機能を提供しています。JavaScriptを有効にするとご利用いただけます。
本文へスキップします。
静岡市
キーワード検索
SEARCH MENU
検索の方法
よく見られている情報
便利ガイド
LIVING GUIDE
閉じる
緊急情報
印刷
ページID:14151
更新日:2024年2月15日
ここから本文です。
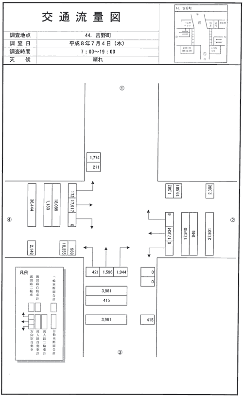
主要交差点交通量調査結果
その他の区域を見る
静岡市トップページ > くらし・手続き > 道路・交通・自転車 > 交通・自転車 > 静岡市主要交差点交通量調査 > 交通量調査全地点図 > 交通量調査全地点図(葵区) > 2.天王町 > 2.天王町:平成8年度(12h)